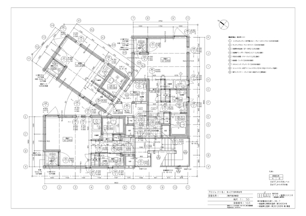
住宅系
舎人木造3階建 集合住宅

・所在地:東京都足立区
・設計期間:2014年~
・用 途:集合住宅
・業務内容:企画設計
木造3階建て集合住宅。入居者を音大生にターゲットを絞った、遮音性能の高い建物が要求された。
厳しい敷地条件下で最大限の住戸(8室)を確保しつつ、入居者の特異性を考慮し住戸が隣り合わないプラニングに行き着いた。
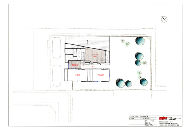
川口M邸



















・所在地:埼玉県川口市
・設計期間:2013年~2014年
・竣工年:2014年12月
・用 途:戸建住宅
・業務内容:設計・監理一式
土地区画整理事業内に建つ、夫婦+息子の3人家族のための住宅。施主(息子様)が大手鉄道会社に勤務されていることもあって、「建築」と「鉄道」の常識の垣根を行き来しながら海外からの訪問者を迎え入れるサロンのような住まいを目指した。
―東レ外装材「ラップサイディング」フォトコンテスト佳作受賞
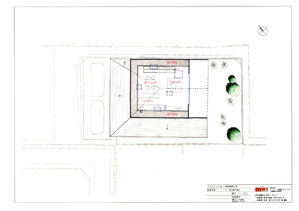
足立Y邸



















・所在地:東京都足立区
・設計期間:2011年~2012年
・竣工年:2013年5月
・用 途:戸建住宅
・業務内容:設計・監理一式
3.11大震災を教訓に計画された“減災”住宅。 愛犬2匹と共に過ごす、高齢のご夫婦の『終の棲家』のすまいにご子息の営まれる、足湯を中心に据えた鍼灸院が併設された。次世代に引き継げるような省エネ対策を施し、独自のスマートハウスを確立する。さらに年間通じての安定した室内環境を保つ意味から、熱効率を意識した設備計画としている。
―日経アーキテクチャー №1020(2014) 住宅特集
松山Nコンプレックス
・所在地:愛媛県松山市
・設計期間:2012年~
・用 途:店舗、事務所、集合住宅
・業務内容:企画設計
松山市の中心街に立つ複合施設の計画。1階、2階は収益性を重視する一方、3、4階の共同住宅はおもちゃ箱をひっくり返したようなランダムな配置とし、「天空タウンハウス」として空洞化が著しい街区に人を呼び戻す目玉とした。
福岡T計画
・所在地:福岡県早良区
・設計期間:2011年~
・用 途:病院、集合住宅
・業務内容:企画設計
既存病院の改築計画。2001年に竣工した増築病棟を残し、病院のほかにサービスアパートメントや店舗を新たな「核」に据え、永らく地域に貢献する施設として機能することが求められた。
三番町H計画

















・所在地:東京都千代田区
・設計期間:2008年~
・用 途:サービスアパートメント、店舗
・業務内容:企画設計
千代田区内の某所に建つ、都内最大規模のサービスアパートメントの計画。国内外の富裕層をターゲットとしたハイグレードの最新設備を整え、セカンドハウス・長期滞在型・事務所など様々な利用に対応できる附帯施設も装備している。
東日暮里”ラ・ポルト”


















・所在地:東京都荒川区
・設計期間:2006年
・竣工年:2007年6月
・用 途:集合住宅(賃貸マンション)+店舗
・業務内容:設計・監理一式
小さい敷地ながら間口の大きい敷地に立つ、マンションの増築計画。様々なシングル / ファミリーに対応できる全てタイプの違う27部屋を用意している。駅のロータリーから良く見えることもあり、界隈のランドマーク(繊維の町のゲート)の役割を担う。
杉並S邸



















・所在地:東京都杉並区
・設計期間:2004年~2005年
・竣工年:2006年8月
・用 途:戸建住宅
・業務内容:設計・監理一式
閑静な住宅地に建つ、夫婦+子供3人(+犬2匹)の家族のための高級住宅。施主がこだわった曲線のフォルムを多用したことで、さまざまな光と影が刻々と空間を織りなし、日々の暮らしに変化をもたらす住まいを目指した。
河口湖W別邸









・所在地:山梨県南都留郡
・設計期間:2004年
・用 途:別荘
・業務内容:企画設計
山中湖畔に計画の別荘。週末は夫のアトリエ、夏期は妻の経営する塾の夏期合宿として利用される。
敷地は山中湖に向かって急勾配の傾斜地であるため、〈折り紙〉のように踊りながら蛇行させるプレート(屋根)を用意し、その下部に階段状のオープンテラスとひな壇状の個室を設えた。
八王子O邸 [クリニック併用住宅]









・所在地:東京都八王子市
・設計期間:1999年~2000年
・竣工年:2001年3月
・用 途:戸建住宅+クリニック
・業務内容:設計・監理一式
高層・高密度な商業地区の中にあって、1階:医療クリニック・2階:オーナー住居という低層ビルの計画。
変形三角敷地の特異な状況を逆手に取った、この場所しか成り立たないアーバンデザインを模索した。

















