海外系
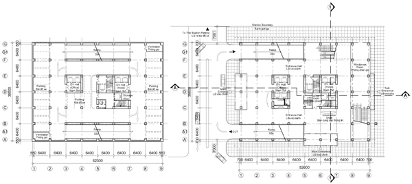
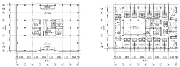
ハノイ駅他ツインタワー計画





・所在地:ベトナム ハノイ
・設計期間:2010年
・用 途:事務所、ホテル、店舗
・業務内容:企画設計
日本のODAで計画が進められているベトナム・ハノイ高速鉄道プロジェクトで現地の設計共同体JKT[交建設計傘下]に参画。
主にハノイ駅とザバット駅周辺の、ツインタワービルを含むビル群の企画設計を担当。
N.J.P.博物館





・所在地:韓国キョンギ―州
・設計期間:2003年
・用 途:博物館
・業務内容:国際設計競技
「ビデオアート」の祖といわれる世界的アーチスト、ナム・ジュン・パイクの作品展示を主とした美術館の国際設計競技応募案。
彼の辿った足跡を「図像」化し、今日に至った〈甘い宗教性〉という着地点を未完の「絵」と捉えて、「挽歌としての建築」に置換することを意図した。
※サウジアラビア都市構想



・所在地:サウジアラビア ジェッダ
・設計期間:1998年
・用 途: 開閉式屋内競技場、ほか
・業務内容:企画設計
石油の利権に絡み、国内石油会社がJVを組んでサウジアラビア皇太子に進呈した巨大な楽園都市プロジェクト。
日本の某建設会社が技術保有する開閉式ドームを中心とし、モスク、図書館、集合住宅、劇場、博物館、科学館などあらゆるタイプの施設を周辺に配し、それらをモノレールで繋ぐという世界一の都市を構想した。
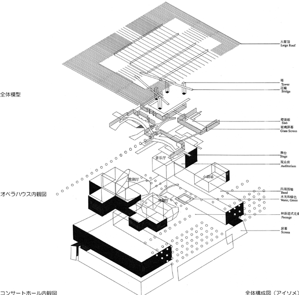
※中国国家大劇院





・所在地:中国 北京市
・設計期間:1997年
・用 途: 劇場、ホール
・業務内容:国際設計競技
北京・天安門広場横、人民大会堂の脇に立つ予定の、世界一のオペラハウスの国際設計指名競技応募案。
オペラハウス、劇場、コンサートホール、小劇場の必要4施設を背中合わせに配し、その中心に四合院ならぬ、“五合院”の開放的なフォーラムを作り出した。そしてそれらの施設に国家権力の象徴としてのシャープな大屋根を架ける提案をした。
米韓芸術文化センター








・所在地:アメリカ・ロサンジェルス
・設計期間:1995年
・用 途:文化センター、美術館
・業務内容:国際設計競技[入賞]
アメリカ・ロサンジェルスの韓国タウンに建設される、米韓の文化交流の拠点として韓国文化を広く情報伝達することが目的の芸術文化センター+美術館の国際設計競技応募案。[セミファイナル13選・Exhibition Entry] 〈風の丘を越えて〉と題された自案は、当時韓国で大ヒットした映画のタイトルをそのまま借用している。











